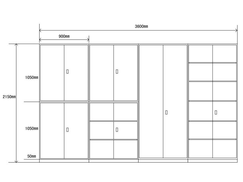
設置前に提案したレイアウト図
熊本地震から2年7カ月経過しましたが、本日のお客様事務所では軽量棚が傾いた状態で使われていました。
軽量棚は、一般的な事務所の書類保管などで最も多く活用されているスチール製L型支柱の物品棚です。
1棚あたり耐荷重100kg~150kgと、上からの重さに関しては強いのですが、それが重ければ重いだけ横揺れには弱いです。
使用時は書類が棚全体にぎっしり収納されていたため、ご覧の通り右側に傾いてました。
今回は、この軽量棚から壁面書庫への交換作業を行いました。
まずは軽量棚の解体撤去から。
一度設置したら掃除する機会は無いので。
書庫の搬入作業。
1台ずつ部屋に運び入れます。
ベースを置いて、水平調整。
図面通りの組み合わせで書庫設置。
もう少し。
最後の1台
隣の書庫との連結作業。
壁面への固定。
提案レイアウト図のとおりに設置完了しました。


