熊本で中古オフィス家具をお探しならもっとオフィスへ

もっとオフィス

営業時間 10:00~16:30
定休日  土・日・祝祭日

TEL 096-319-1300

ブログ

事務所のレイアウトを考えた

先日、広告関係業務をされているお客様より事務所内のオフィス家具レイアウト(配置)を一緒に考えてもらいたいとの相談をお受けしました。
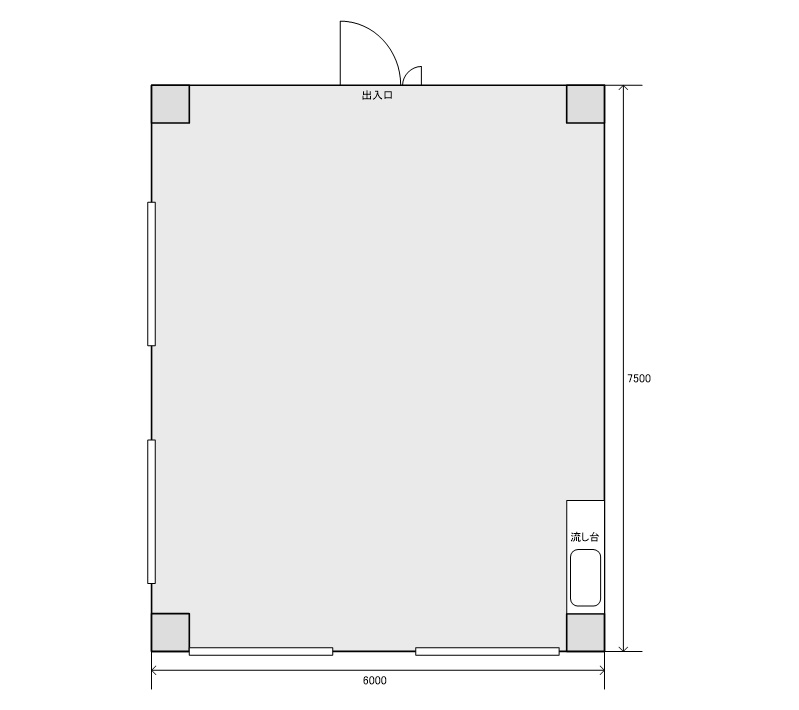
場所は、熊本市内のビルの5階の1室です。

そこで事務所のレイアウトを検討する元になる、以下の情報を確認させていただきました。

・業務詳細
・スタッフの総数と役割(営業、総務、制作)配地数
・スタッフの動線
・来訪者の導線(数・頻度・所用時間)
・各人の書類と総量(日常使用?保存資料?)
・共有スペースと機密スペースの割合
・オフィス家具以外の備品類(複合機など)の量
・コンセントやLANなど既存設備
・社長の好み(いや、ご意見)← これが結構重要

layout2

まだ何も置かれてない部屋を時計回りに撮影しました。
右奥
IMG_2813

右手前
IMG_2812

出入口と左手前
IMG_2811

左奥 流し台の一角
IMG_2810

下の図がご提案させていただいた配置です。
実際には、持ち込んだ家具を置いて調整しました。

layout1

商品のご購入・お問い合わせ

下記の電話番号またはフォームからお問い合わせいただくか、店舗へお越しください。

motto-office

お電話でのお問い合わせ
TEL 096-319-1300

受付時間 10:00~16:30
店休日:土曜・日曜・祝祭日
(くわしくは営業日のご案内をご覧ください。)

〒861-5515 熊本市北区四方寄町1631番2-2 (お店前に駐車場をご用意しております。)

トップに戻る