熊本地震から今週で約5カ月が経過します。
熊本市やその近郊は、今でも時おり大きな余震が発生するので、気を緩めることが出来ない状況です。
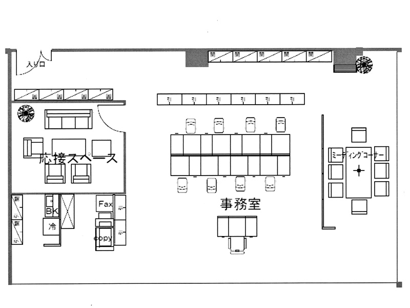
さて、下の図は一般的にはありがちな事務所のレイアウトです。
しかし、このレイアウトだと強い地震が起こった場合大変危険な状況になるような問題を抱えています。

おわかりでしょうか?
①壁面収納庫‥‥前方に倒壊した場合、唯一の出入り口が塞がれて脱出できない。
②壁面収納庫‥‥この場所は書庫間連結だけでなく、確実に壁面との間に耐震固定を施工する。
③収納庫‥‥‥‥この場所にH1800を超すような収納庫があると倒壊した場合、直接人命にかかわる事故が起きかねない。最も危険
このような事故が起きないよう、レイアウトは慎重に検討しましょう。
また、安全な収納を心がけましょう。



