熊本市中央区帯山ビル1階にある新たな事務所にオフィス家具の搬入を行いました。
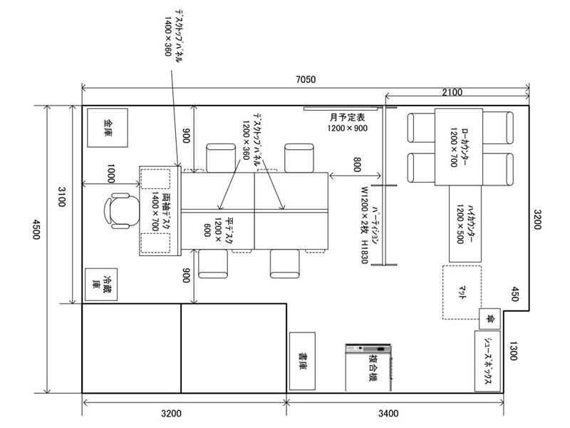
9月20日に初めて下見に伺い、部屋の採寸を行うとともに、ご利用人数、書類の容量などご希望をお伺いして、以下のような図面を作成しました。
要望として、事務スペースが外から丸見えになるのは避けたいし、来訪者との打ち合わせ時に事務所内が見せたくないという事だったので、事務所内と受付間にパーティションで仕切りを設けて、商談は受付脇のローカウンターで行うレイアウトにしました。
数回の図面変更を行い、10月5日に什器類の搬入を行いました。

搬入前に複合機と電話回線が設置されてました。
奥には耐火金庫

中から出入り口方向を見る。
入室の際はスリッパに履き替える事になるらしい。

今回は、中古だけでは揃えることが出来なかったため、約半分は新品での対応となりました。
来訪者に事務所内が見えないよう、カウンター横で打合せして頂くレイアウトです。
事務所内と受付を仕切るパーティションの上部は半透明アクリルなので、圧迫感は無い。
壁とチェアの空間確保のため平デスクは1200×600を選定。
デスクトップには樹脂製のパネルを配置しました。
シューズボックスと傘立も図面とおり収まりました。
今回は、図面段階でしっかり打合せも行ったため、難なく納品完了に至りました。
オーナー様にも喜んでいただけました。


